Projetos
Sobre
Contato
Restaurante Peabiru
Descrição
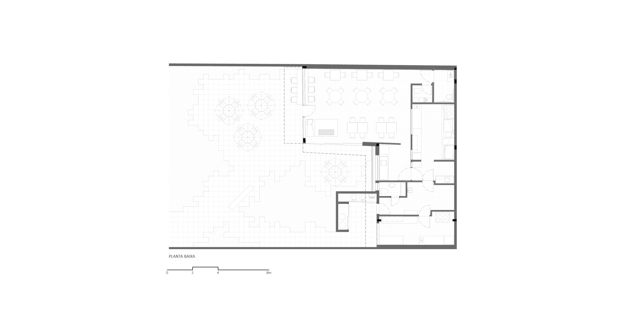
Desenhos
Renders
Obra
Local
Curitiba, PR
Status
Concluído
Projeto
2024
Ano de conclusão
2025
Fotos
Gustavo Maravieski
Desenhos
Renders
Obra