• Local Curitiba, PR
  • Status Concluído
  • Fotos André Nacli

O que se deixa
A etimologia da palavra Arquiteto vem da junção das palavras gregas “arkhé” que pode
se traduzir por “principal, primeiro, maior” e “tékhton”que se traduz como “tecer, fazer,
construir”.
Em outras palavras, antes que exista Arquitetura, existe o Arquiteto, o que primeiro tece,
deseja, desenha.
Esse fazer primordial muitas vezes parece complicado de explicar, por ter de se olhar ao
fazedor e não à coisa feita, pois a coisa feita já é antes de ser, em projeção, em projeto,
em desejo.
E nas obras aqui selecionadas, o desejo está em não se notar.
Está em deixar permanecer apenas o que é essencial. Entender com atenção as
necessidades, o programa, o local, para que a intervenção seja calma, silenciosa,
certeira.
Aqui reside o mais árduo desafio, dificultado ainda mais por um mundo que nos amontoa
com imagens numa velocidade tal que prejudica a assimilação.
Motivo pelo qual é cada vez mais raro, e por isso tão precioso – para não dizer preciso –
encontrar arquitetos preocupados com que seus desenhos não se sobressaiam às
principais necessidades colocadas.
O fio aqui usado para tecer vira concreto, pedra, vidro, metal, tijolo; fiado
silenciosamente, atento aos alinhamentos dos encontros, dos percursos; quer das
pessoas que por ali adentram, quer da luz que banha as superfícies imaginadas.
Esses percursos conectam-se a cidade construída de forma fluida, complementar,
entendendo que a boa construção vem da colaboração, tanto dos agentes envolvidos,
quanto dos elementos propostos.
Da mesma maneira que as pausas valorizam o soar das notas, o silêncio presente nas
obras aqui expostas permite uma ocupação do espaço sem entraves, valorizando a ideia
de não se deixar uma presença desnecessária.
Não poderia se justificar de forma melhor o fato da origem da palavra Arquitetura vir de
quem a faz, pois só assim ela existe, encobrindo a existência de quem a idealizou.
É o arquiteto quem arqueia, seu desejo dobra em curva, cria o arco.
O arco, ao sustentar um plano, define abaixo dele o espaço.
Na intenção de não deixar nada, fica o que é mais importante.

– André Scarpa

Galeria

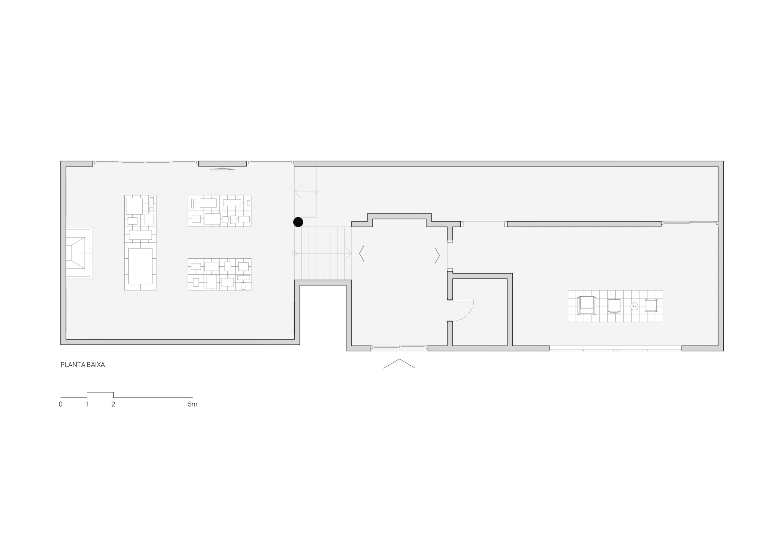
Desenhos